Home 130

Windsor

5 bedroom house

HOME 130

ABOUT

Windsor

5 bedroom house

Sold

Key information

Chippenham, Wiltshire

Single garage

EV Charging point

Two parking spaces

PV Panels

The Windsor is a spacious family home with five double bedrooms, two bathrooms, study, separate utility room, and substantial living spaces. The open plan kitchen, dining, and family room features French doors which open out into the rear garden. Bay windows provide elegance, interest, and light. But perhaps the greatest attraction is bedroom one which features an en suite shower room and built-in wardrobes.

This five bedroom, detached property has a single garage and two parking spaces, and includes a ten year Premier warranty and also a two year Crest Nicholson Warranty. It is a Freehold tenure and has an annual service charge of £259.41 per year, which is reviewed annually. As the property is a new build home the council tax band is to be determined.

READ MORE

Further key information for this home and the total indicative price and price breakdown can be found in the tables below. Any additional costs you might need to know about are explained further down the page.

  • 10 year NHBC warranty
  • 2 year Crest Nicholson warranty
  • Detached property
  • Dressing area to bedroom 1
  • En suite to bedroom 1
  • Five double bedrooms
  • Garage and parking
  • Separate living room with bay window
  • Separate utility
  • Air source heat pump system

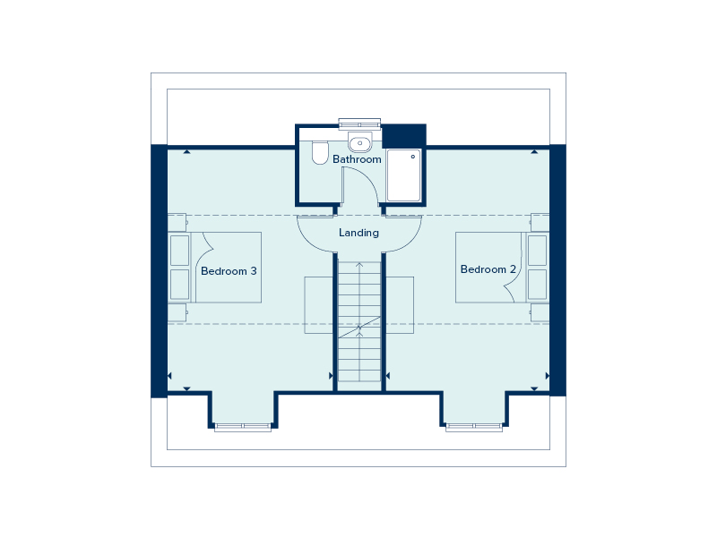
FLOOR PLANS

KITCHEN / DINING / FAMILY ROOM
8.17m x 2.74m 26'6" x 9'0"
LIVING ROOM
4.83m x 3.50m 15'10" x 11'6"
STUDY
2.90m x 2.48m 9'6" x 8'1"

Total approximate area: 1,751 sq. ft.

BEDROOM 1
3.54m x 3.01m 11'7" x 9'10"
EDROOM 4
3.93m x 2.96m 12'10" x 9'8"
BEDROOM 5
3.71m x 2.43m 12'2" x 7'11"

Total approximate area: 1,751 sq. ft.

BEDROOM 2
5.20m x 3.50m 17'2" x 11'6"
BEDROOM 3
5.20m x 3.54m 17'2" x 11'7"

Total approximate area: 1,751 sq. ft.

About this home

Category
Description

Type

Detached House

Anticipated Completion Date

Spring 2026

Tenure

This home is freehold tenure with managed common areas. Freehold not yet registered at Land Registry

Service Charge

£259.41 per year. Correct at the time of publication, the service charge may increase in future in line with increases in estate costs.

Anticipated Council Tax

Expected council tax band F as at March 2026

Construction Method

Traditional Brick & Block

Electricity Supply

Mains electricity with smart meter supplemented with PV panels

Water Supply

Mains water supply with meter

Sewerage

Mains sewerage

Heating

Metered mains gas with boiler and radiators

Indicative EPC Rating

Broadband

Fibre to the premises, Openreach with open network subject to availability within the area

Mobile Coverage

For an indication of specific speeds and supply or coverage in the area, please see the Ofcom checker.

Parking

Single garage and two parking spaces

Warranty Provider

NHBC

TOTAL INDICATIVE PRICE BREAKDOWN

Category
Item
Estimated Cost

The Property

Purchase Price

i

Tax

Stamp Duty (SDLT)

i

First Time Buyer
Buying next home
Buying second home/buy to let
£19,250
£19,250
£48,500

Legal

Conveyancing Fees

i

Engrossment Fee

i

£1,500 - £2,500
£150

Mortgage

Arrangement/Product Fee

i

Mortgage Valuation

i

£1,000 - £2,000
£0 - £500

ESTIMATED TOTAL

(Price + Upfront Costs)
£608,150

Indicative total price assumes first time buyer stamp duty land tax and the mid-point cost figure in the cost ranges given above.

Optional Upgrades

Depending on the build stage of your new home, you may have the opportunity to personalise certain features with our Arteva upgrades. You can explore the range and prices in our online brochure, available at www.arteva-crestnicholson.com.

To understand whether the cost of items such as flooring and turf are included in the price of your home of interest and for the detailed specification and likely additional cost if you want to add those items, please speak to a sales executive.

Mortgage Payments

If you take a mortgage, your monthly repayments will depend on the amount you borrow, whether the interest rate is fixed or variable and the term length. You should make sure you can afford the mortgage payments as your home may be at risk if you do not keep up your mortgage repayments.

Reservation Fee

£1,000 will be payable which will be treated as a part pre-payment of the final price.

This is a fixed cost of purchase and is the core price payable for the home. It covers the home fitted out to our standard specification.This will include the reservation fee of £1,000 which is payable on reservation and which will count towards the price paid for the home and also count towards the amount of the deposit. You must also pay a typical 10% deposit on exchange of contracts (less the amount of the reservation fee paid) which will count towards the price paid for the home.
This is an indicative cost of purchase. Stamp Duty Land Tax (SDLT) is the tax charged by the government, which you pay on completion of the purchase of your new home. The amount you pay is determined by the purchase price of your new home and whether after purchasing, it is the only home you own. The figure used in the estimated total price assumes you are a first time buyer.
This is an indicative cost of purchase. You will have to pay your own legal costs and expenses for the purchase of your home. These costs will vary depending on your choice of legal advisor, this is a guide range of typical legal fees, plus VAT. These costs are only indicative and your actual legal costs and expenses may be different.
This is a fixed cost of purchase. An engrossment fee is charged by a conveyancer for producing the legal document that will transfer ownership from the seller to the buyer.
These are an indicative cost of purchase. A typical mortgage fee will depend on the amount of mortgage that you require. In addition your mortgage advisor may charge a fee or their fees may be paid by your mortgage provider. These indicative costs include VAT and will not apply if you do not need a mortgage.
This is an indicative cost of purchase and may be charged by your mortgage provider.

Attention to detail

Crest Nicholson homes are carefully crafted, reflecting our commitment to superior build quality and thoughtful designs for you to live comfortably in your new home. For your peace of mind this home is covered by a 2-year Crest Nicholson and 10-year warranty from either NHBC or Premier Guarantee. Find out more about the design of this home.

FEATURES AND FINISHES

TAKE THE

VIRTUAL TOUR

We're proud to build quality homes, view the virtual tour of this home type and imagine life in your new home.

GET IN TOUCH

Are you interested in a home at Rowden Gate?
Please don't hesitate to get in touch
01249510892

COME AND VISIT

We're next open: Saturday 10:00 - 17:00

Loading Results Symbol

FIND ROWDEN GATE

Chippenham, Wiltshire, SN15 2NR

what3words: ///tinsel.clues.skirt

Development Plan

https://www.crestnicholson.com/Rowden Gate Development Plan

A number of new homes on our developments are designated as affordable homes in accordance with the requirements of the section 106 planning agreement. These are specifically shown on the development plan as affordable housing and/or affordable rent or shared ownership properties to make it clear that they are not available for general sale. The location of affordable homes is indicative only. The remaining homes on the development are available for open market sale (including multi-unit sales) to purchasers, who could be private individuals or another type of purchaser (for example local authorities, housing associations or other commercial landlords), and, therefore, the mix of tenures on a development may change.

Kitchen & Utility

The Kitchen & Utility

Our kitchens are designed to combine elegance, durability, and innovation. Every home features a Symphony kitchen, the UK's leading manufacturer of fitted furniture, offering stylish, sustainable designs built to last.

Complementing this are premium white Rangemaster igneous granite sinks, crafted from 80% quartz for exceptional strength, antibacterial protection, and a fade-free finish.

Kitchens are further enhanced with premium appliances combining Bosch, renowned for German engineering and reliability, and Hotpoint appliances that deliver outstanding performance and intelligent functionality, trusted for over a century.

Bathrooms

Bathrooms & En-suites

Our bathrooms and en-suites are designed to the highest specification, featuring Porcelanosa tiles for timeless elegance and exceptional durability. These premium tiles are scratch, stain, and water-resistant, available in a wide range of colours and patterns, and produced using sustainable practices.

Complementing this, Roca sanitaryware brings over a century of innovation to deliver versatile, stylish bathroom solutions crafted from high-quality materials, ensuring long-lasting performance, easy maintenance, and superior hygiene.

Finishing Touches

The Finishing Touches

Every home is finished to an exceptional standard, showcasing quality craftsmanship and thoughtful design throughout.

A standout feature in our homes is the staircase, thoughtfully designed to feature a contemporary oak handrail that blends modern elegance with traditional skill. Detail that ensures durability and creates a striking focal point within the home, reflecting our commitment to superior finishes and timeless style.

Energy Efficiency

Designed for comfort

Our homes are designed to keep you comfortable while saving energy and money.

Smart Honeywell T6 thermostats give you easy control over heating and hot water, so you can manage your home from anywhere.

High-performance Myson radiators and stylish towel rails provide warmth quickly and efficiently, while modern insulation, triple glazing, and energy-saving LED lighting help reduce heat loss and lower bills.

With water-efficient taps, A-rated appliances, and sustainable building standards, our homes are up to 65% more energy efficient than older properties*, meaning lower running costs and a greener future for you.

*Indicative figures, based on HBF data, updated January 2025. Savings relate to energy consumed for heating, hot water and lighting.

MORTGAGE
CALCULATOR

House value

Deposit amount

£58,500

Mortgage required

£526,500

Loan to value

90%

Monthly repayments

Years

25

Interest rate

3%

Monthly repayment

YOUR HOME MAY BE REPOSSESSED IF YOU DO NOT KEEP UP WITH REPAYMENTS ON A MORTGAGE OR ANY OTHER DEBT SECURED ON IT. Crest Nicholson is not a lender and this information is only a guide. The interest rate has been assumed to stay the same for the selected mortgage term. Repayments will be subject to the product provided and your circumstances. If you require a mortgage, you are strongly advised to obtain advice from a regulated mortgage adviser.

SIMILAR HOMES

YOU MIGHT LIKE

Windsor

HOME 145

Windsor

VIEW FLOOR PLANS

£590,000

5 bedroom house

VIEW FLOOR PLANS
Buckingham

HOME 82

Buckingham

VIEW FLOOR PLANS

£585,000

5 bedroom house

VIEW FLOOR PLANS