Home 38

Barnsletts House

2 bedroom apartment

HOME 38

ABOUT

Barnsletts House

2 bedroom apartment

Sold

Key information

Henley-on-Thames, Oxfordshire

One parking space

The apartments boast many modern essentials including an open plan layout, an en suite to the main bedroom and a private balcony/terrace; which is ideal for enjoying a breath of fresh air and admiring your surroundings.

READ MORE

Further key information for this home and the total indicative price and price breakdown can be found in the tables below. Any additional costs you might need to know about are explained further down the page.

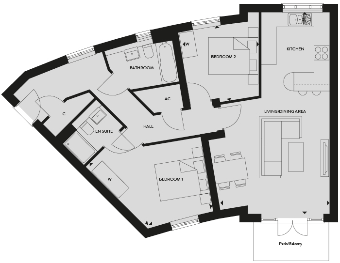
FLOOR PLANS

Living/Dining/Kitchen
8.08m x 4.34m (26' 06" x 14' 03")
Bedroom 1
3.51m x 2.69m (11' 06" x 8' 10")
Bedroom 2
3.05m x 2.77m (10' 00" x 9' 01")

Total approximate area: 794 sq. ft.

W - Wardrobe

C - Cupboard

A/C - Airing cupboard

About this home

Category
Description

Type

Apartment

Anticipated Completion Date

Ready to move into

Tenure

This home is leasehold tenure with managed common areas. Leasehold not yet registered at Land Registry

Ground Rent

No money is payable for ground rent under this lease

Lease Length

999

Service Charge

Service charge – £1973.92 per year. Correct at the time of publication, the service charge may increase in future in line with increases in estate costs.

Anticipated Council Tax

Construction Method

Traditional Brick & Block

Electricity Supply

Mains electricity supply with smart meter

Water Supply

Mains water supply with meter

Sewerage

Mains sewerage

Heating

Metered mains gas with boiler and radiators

Indicative EPC Rating

B

Broadband

Fibre to the premises

Mobile Coverage

For an indication of specific speeds and supply or coverage in the area, please see the Ofcom checker.

Parking

One parking space

Warranty Provider

NHBC

TOTAL INDICATIVE PRICE BREAKDOWN

Category
Item
Estimated Cost

The Property

Purchase Price

i

Tax

Stamp Duty (SDLT)

i

First Time Buyer
Buying next home
Buying second home/buy to let
£9,998
£14,998
£39,995

Legal

Conveyancing Fees

i

Engrossment Fee

i

£1,500 - £2,500
£150

Mortgage

Arrangement/Product Fee

i

Mortgage Valuation

i

£1,000 - £2,000
£0 - £500

ESTIMATED TOTAL

(Price + Upfront Costs)
£513,848

Indicative total price assumes first time buyer stamp duty land tax.

Optional Upgrades

Depending on the build stage of your new home, you may have the opportunity to personalise certain features with our Arteva upgrades. You can explore the range and prices in our online brochure, available at www.arteva-crestnicholson.com

Mortgage Payments

If you take a mortgage, your monthly repayments will depend on the amount you borrow, whether the interest rate is fixed or variable and the term length. You should make sure you can afford the mortgage payments as your home may be at risk if you do not keep up your mortgage repayments.

Reservation Fee

£1,000 will be payable which will be treated as a part pre-payment of the final price.

This is a fixed cost of purchase and is the core price payable for the home. It covers the home fitted out to our standard specification.This will include the reservation fee of £1,000 which is payable on reservation and which will count towards the price paid for the home and also count towards the amount of the deposit. You must also pay a typical 10% deposit on exchange of contracts (less the amount of the reservation fee paid) which will count towards the price paid for the home.
This is an indicative cost of purchase. Stamp Duty Land Tax (SDLT) is the tax charged by the government, which you pay on completion of the purchase of your new home. The amount you pay is determined by the purchase price of your new home and whether after purchasing, it is the only home you own. The figure used in the estimated total price assumes you are a first time buyer.
This is an indicative cost of purchase. You will have to pay your own legal costs and expenses for the purchase of your home. These costs will vary depending on your choice of legal advisor, this is a guide range of typical legal fees, plus VAT. These costs are only indicative and your actual legal costs and expenses may be different.
This is a fixed cost of purchase. An engrossment fee is charged by a conveyancer for producing the legal document that will transfer ownership from the seller to the buyer.
These are an indicative cost of purchase. A typical mortgage fee will depend on the amount of mortgage that you require. In addition your mortgage advisor may charge a fee or their fees may be paid by your mortgage provider. These indicative costs include VAT and will not apply if you do not need a mortgage.
This is an indicative cost of purchase and may be charged by your mortgage provider.

Attention to detail

Crest Nicholson homes are carefully crafted, reflecting our commitment to superior build quality and thoughtful designs for you to live comfortably in your new home. For your peace of mind this home is covered by a 2-year Crest Nicholson and 10-year warranty from either NHBC or Premier Guarantee. Find out more about the design of this home.

FEATURES AND FINISHES

GET IN TOUCH

Are you interested in a home at Highlands Park?
Please don't hesitate to get in touch
01189520540

COME AND VISIT

Selling from: Savills Estate Agents by appointment only. Call to book your appointment.

Our sales suite is not open yet. Please enquire to register your interest.

FIND HIGHLANDS PARK

Henley-on-Thames, Oxfordshire, RG9 4BD

what3words: ///rail.tacky.historic

Development Plan

https://www.crestnicholson.com/Highlands Park - Site Plan - Sept 23

A number of new homes on our developments are designated as affordable homes in accordance with the requirements of the section 106 planning agreement. These are specifically shown on the development plan as affordable housing and/or affordable rent or shared ownership properties to make it clear that they are not available for general sale. The location of affordable homes is indicative only. The remaining homes on the development are available for open market sale (including multi-unit sales) to purchasers, who could be private individuals or another type of purchaser (for example local authorities, housing associations or other commercial landlords), and, therefore, the mix of tenures on a development may change.

MORTGAGE
CALCULATOR

House value

Deposit amount

£49,995

Mortgage required

£449,955

Loan to value

90%

Monthly repayments

Years

25

Interest rate

3%

Monthly repayment

YOUR HOME MAY BE REPOSSESSED IF YOU DO NOT KEEP UP WITH REPAYMENTS ON A MORTGAGE OR ANY OTHER DEBT SECURED ON IT. Crest Nicholson is not a lender and this information is only a guide. The interest rate has been assumed to stay the same for the selected mortgage term. Repayments will be subject to the product provided and your circumstances. If you require a mortgage, you are strongly advised to obtain advice from a regulated mortgage adviser.